Narrow Victory: Tackling a Deep, Elongated Kitchen Plan
The challenge with this single-family home is that the layout is narrow and deep like a row house. The flow is choppy, with five rooms—two large, formal living and dining spaces, plus a smaller kitchen, breakfast area, and sunroom—each of which is a distinct space that isn’t well-connected to the others. In addition, circulation between the front and back of the house is congested.
The goal for this project was to create a larger kitchen that incorporated the three more casual rooms and tied them together in a cohesive way.
Analysis
This house could use a bigger, better-connected kitchen, but circulation is also an issue that needs to be addressed. The entry is a dead end, and to move between the front and back of the house, you have to go through the living room and the dining room. This pattern results in spaces that can feel more like hallways than rooms. It can also make these rooms difficult to furnish because furniture placement has to consider traffic patterns.
Stretched Work Triangle
Our first scheme opens the spaces up to one another and enlarges the kitchen. But the bigger kitchen is L- shaped with a long wall, which stretches the space out, creating long distances between appliances. It’s also still tight, with not quite enough space between the countertop surfaces. Plus, it does nothing to help the awkward access to the basement stairs.
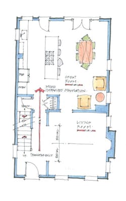
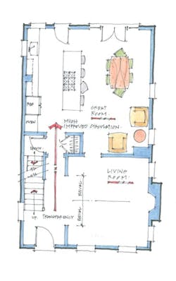
Not-So-Great Room
Here, we’ve improved circulation by rotating the closet space, which creates a hallway to the kitchen and also improves access to the basement with a landing at the top of the stairs. And we’ve sacrificed the formal Dining Room for a Great Room that combines kitchen, casual dining, and a small sitting area. The result is a much more modern, open plan. But have we gone too far?
Added Benefit
This final concept answers the question that was not asked: Can we squeeze in a powder room, which would add convenience and boost resale value?
We accomplished this by moving the kitchen into a small addition. This scheme also adds closet space and allows us to keep the formal dining room.
How do you do it? I would love to hear any ideas you have for helping clients make good decisions. PR
---
Bill Millholland is an executive vice president at Case Design/Remodeling, in the Washington, D.C., area, where his duties never stray too far from helping clients solve design problems. [email protected]




